一、采购项目:
| 1 |
方形球墨井盖(重型承载50T) |
1000*1000 |
付 |
20 |
|
|
| 2 |
方形球墨井盖(盖中盖重型承载50T) |
1500*1000 |
付 |
10 |
|
|
| |
|
|
|
|
|
|
二、项目用途:工程技术部西尤仓库备货球墨井盖
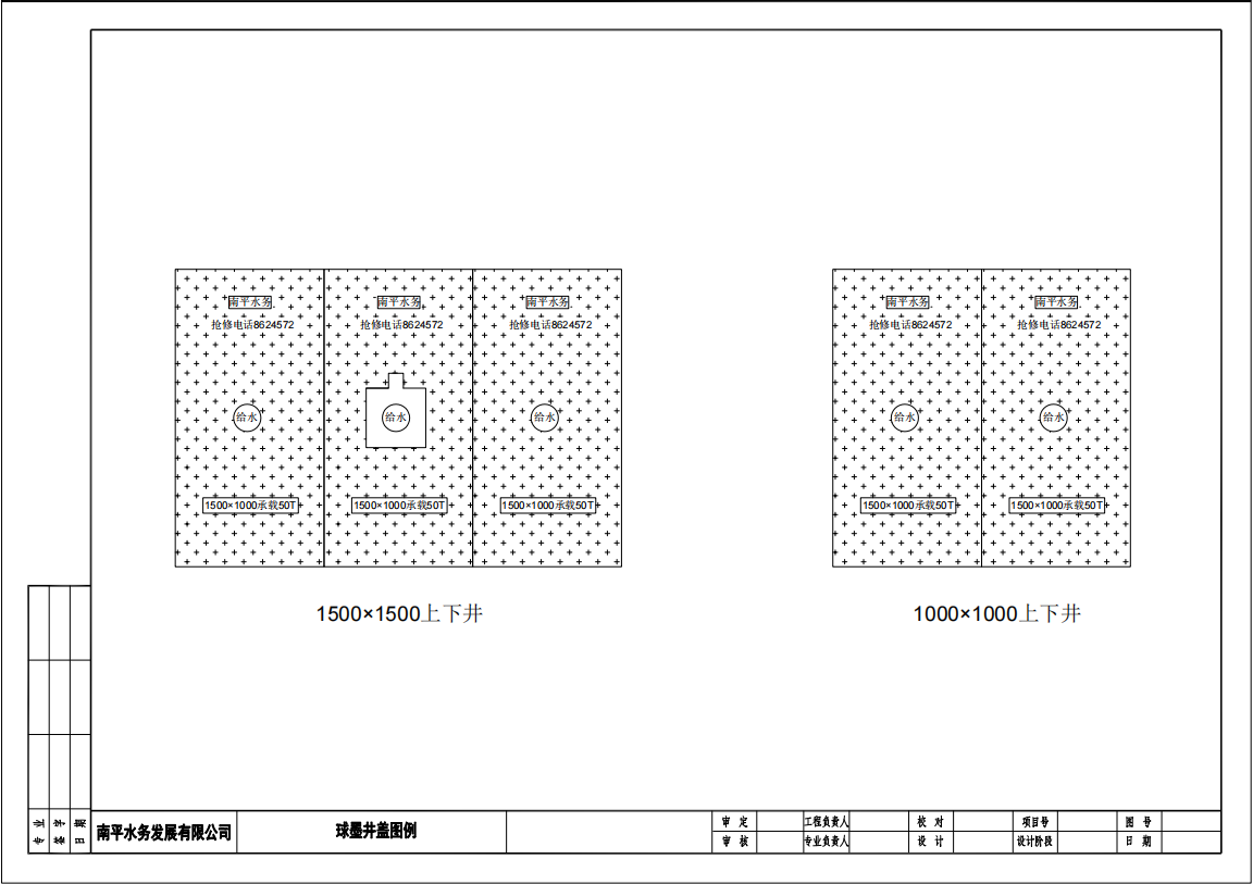
三、技术参数性能要求:球墨井盖技术要求:1、井盖、井面要求:需标注南平水务字样、给水字样、抢修电话、规格、载重量、生产单位。
2、球墨井盖的生产和服务具有GBTI9001-2000质量管理体系认证。
3、要求轻型125KN弯曲强度=平均值22MPa冲击强度:平均值10J/.
(1)规格:重量要求500*500(47KG) 600*600(70KG) 700*700(88KG) 800*800(98KG) 1000*1000(170KG) 1500*1000(230KG)
( 2 )普通250KN弯曲强度:平均值22MPa冲击强度:平均值10J/,规格重量要求 500*500(65KG) 600*600(82KG) 700*700(100KG) 800*800(125KG) 1000*1000(210KG) 1500*1000(255KG)
( 3 )重型400KN弯曲强度:平均值22MPA,冲击强度:平均值10J/
规格重量要求:500*500(85KG) 600*600(95KG) 700*700(108KG) 800*800(135KG) 1000*1000(231KG) 1500*1000(270KG)
如本批产品不符合质量要求,予以退回

附球墨井盖图例(详见附件)
四、控制价:70000元五、付款方式及发票条件:在所有货物到达交货地点,并经甲乙双方依据合同规定进行相关检验合格后,以实际供货数量结算。在乙方提供相应增值税专用发票后3个月内结清货款。预留货款的5%作为质量保证金,质量保证金将在质保期结束后一个月内全额无息打入乙方指定账户。六、质量标准及质保期限6.1乙方所提供的所有产品须完全符合本合同约定的技术参数与国家/行业强制性标准,且不存在任何质量或权利瑕疵。产品质量判定以甲方验收结果或双方共同认可的第三方检测机构报告为准。6.2质保期为自最终验收通过之日起12个月。质保期内,产品出现任何非因甲方人为误操作或不可抗力导致的质量问题,乙方应在接到甲方通知后24小时内响应,48小时内完成维修或更换,并承担由此产生的一切费用和损失(包括但不限于甲方停工损失、第三方索赔、额外采购费用等)。6.3产品经乙方维修或更换后,该维修或更换部分的质保期应自甲方确认修复完成之日起重新计算12个月。若同一产品相同质量问题重复发生或经两次维修仍无法正常使用,甲方有权解除合同,要求乙方退货并全额退款,且乙方需赔偿甲方相关损失。6.4质保期满后,乙方仍需提供终身有偿维修服务,并保证自最后一批产品交付之日起10年内以不高于本合同约定成本价供应备品备件。若乙方无法供应,应免费向甲方提供技术图纸并授权第三方生产,或按市场公允价格采购替代品供甲方使用。6.5交付文件与验收:乙方应在交货时同时提供完整的产品质量合格证明、出厂检验报告、详尽的技术资料及安装指导手册。未能完整提供上述文件视为交付未完成,甲方有权拒绝验收,且质保期自文件补齐之日起计算。 七、报价期限于2025年9月28日至2025年9月30日(法定节假日除外)每天上午8点30分至11点30分、下午14点30分至17点30分。供应商应在报价期限内,提供营业执照(需水印备注:用于给南平水务发展有限公司报价使用,报价时间2025年X月X日XX时XX分)及报价单(含税、运及卸车等费用),并用密封袋装好,逾期送达或不符合规定的投标报价文件将被拒绝接收。八、投标截止日时间时间:2025年9月30日17时30分
地点:南平水务发展有限公司六楼物资采购部。
九、联系方式招标人:南平水务发展有限公司
地址:南平市八一路73号延水大厦,邮编: 353000
电话:0599-8611876、18065769943 联系人:陈文军。
十、其他:参与本次投标者默认同意以上所有条款,所用于参与投标的产品均须响应本公告中要求并经产品品牌所有方许可后参与本次招投标,否则一切后果自行承担。